Venta de Apartamento en Solano Park, Punta Carretas. Monoambiente ideal inversores.
Descripción
Venta de Apartamento en Solano Park, Punta Carretas. Monoambiente ideal inversores.
Apartamento en Punta Carretas - Montevideo
Delimitado por el Parque Rodó, la Rambla y el barrio Pocitos, se encuentra el barrio Punta Carretas, una zona exclusiva de Montevideo, en donde se construirá Solano Park.
Muy cercano a centros comerciales de gran tamaño y establecimientos con diversidad de servicios, hacen de Solano Park un lugar ideal para vivir y hacer compras sin necesidad de desplazarse.
Punta Carretas es además una zona con restaurantes de alto nivel y representa uno de los enclaves que más afluencia de turistas acoge. Su amplia rambla y su playa invitan al descanso y los deportes al aire libre.
Solano Park contará con 25 unidades distribuídas en 10 pisos. En planta baja estarán ubicados los exclusivos amenities.
Las tipologías comprenden unidades monoambientes, y de 1, 2 y 3 dormitorios que van de 42 a 117 m2.
Algunas de sus exclusivas unidades cuentan con amplios balcones terraza.
Amenities:
Piscina abierta con deck solárium
Barbacoa
Gimnasio
TERMINACIONES:
- Pisos de listones vinílicos simil madera en living y dormitorios.
- Pisos de porcelanatto en baños y cocinas.
- Pisos de porcelanatto simil madera Toilette.
- Instalación para aire acondicionado.
- Muebles de cocina revestidos en melamina.
- Mesada de Silestone o similar en cocinas y baños.
- Frentes e interiores de placard completos con melamina enchapada.
- Griferías monocomando de primera marca.
- Calefacción por piso radiante eléctrico.
- Vidrio DVH.
- Persiana o toldo exterior en dormitorios
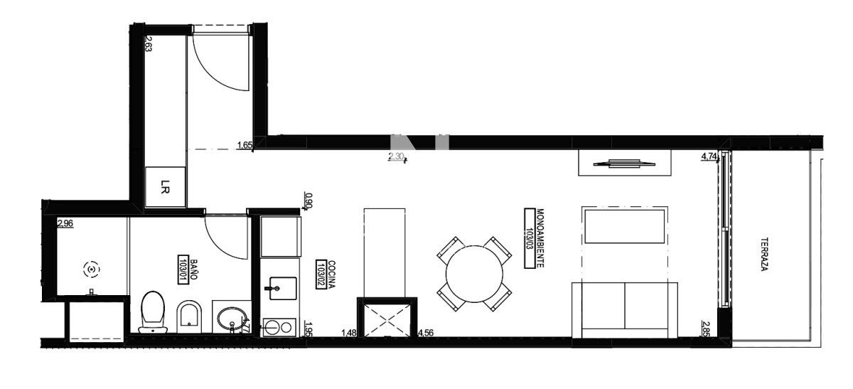
Unidad Monoambiente 1 Baños , con capacidad para 2 personas
Cocina : Integrada, Living , Comedor , Living Comedor
Superficie : 34 m2
Consulte con nuestros asesores.
Características
- Barrio Punta Carretas
- Vista Agradable Entorno
- Total m2 40
- Propios m2 33
- Baños 1
- Toilette No
- Cocina Integrada
- Living Si
- Comedor Si
- Living Comedor Si
- Comedor Diario No
- Capacidad Personas 2
- Dep. Servicio No
- Baño Servicio No
- Estufa Leña No
- Garage Opcional
- Parrillero No
- Piscina Exterior
- Gimnasio Si
Equipamiento y Amenities
Gastos y Impuestos
- Gastos Comunes $ 0
- Frecuencia Gastos Mensual
- Fondo de Reserva $ 0
- Vigencia Fondo Reserva: 2019
- Impuesto Inmobiliario $ 0
- Impuesto Primaria $ 0
El contenido de la pagina fue realizado de buena fe con el fin de brindar información veraz. La información de la pagina puede sufrir modificaciones por indicación de los propietarios. Derechos de imagen y descripciones reservados por nuestra inmobiliaria. Consultar costos inmobiliarios e impuestos previos al cierre de cualquier operación al igual que cedula catastral para confirmar metraje y detalle de expensas. Advertencia: la pagina puede incluir propiedades compartidas por otros colegas en ese caso derechos de imagen perteneces a la inmobiliaria que lo compartió y el propietario si lo desea puede solicitar su exclusión de la nomina de propiedades que maneja esta inmobiliaria.









